shakespeareances.comCaricature of Shakespeare

 

 

Cincinnati Shakespeare Company

New Theater, STA Selection, Takes Shape

Cincinnati Shakespeare CompanyThe stage is set, literally, as the Cincinnati Shakespeare Company's new theater takes shape heading for an anticipated opening in time for the company's 2017–2018 season and the Shakespeare Theatre Association Conference in January 2018.

The new theater is being constructed in the heart of Over-the-Rhine, the city's historic district. Named for Otto M. Budig, a longtime supporter of Cincinnatie Shakespeare Company (CSC) and the $17 million capital campaign's lead contributor, the new facility will incorporate space for modern theatrical technology, increased seating capacity and lobby, expanded education and community outreach opportunities, and on-site production areas and administrative offices.

Concrete outlines of the thrust stage and rooms to its right amid a dirt covered block with a crane and other construction gear in an overhead photo

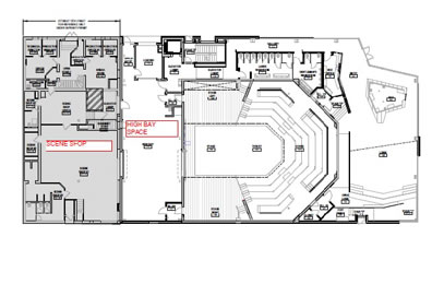
Floor plan of theater
Photo and diagram courtesy of Cincinnati Shakespeare Company.

The concrete outline of the thrust stage is visible on the construction site at 12th and Elm streets. The theater is the finale of a planned “Classical Arts Corridor” connecting Music Hall, Memorial Hall, the School for Creative and Performing Arts, and Washington Park. “Our new theater will be the realization of the long-term vision for Cincinnati Shakespeare Company to become a world-class classical theater,” Brian Isaac Phillips, producing artistic director of Cincinnati Shakespeare Company (CSC), said in a press release. “We need more capacity to execute our bold artistic vision, deeper community engagement, and to transform students' lives in this region and beyond.”

Already the theater has reached far beyond the city limits. As the first concrete was being poured on the site in early May, the company announced that it had been selected along with the City of Cincinnati to host the 2018 Shakespeare Theatre Association (STA) Conference. STA Executive Director Patrick Flick attended the concrete-pouring ceremony to make the announcement.

From a roster of more than 120 companies with annual budgets ranging from $50,000 to $50 million, the STA reviewed proposals from Boston, Milwaukee, Santa Cruz, Newfoundland, and Prague, as well as Cincinnati. "We are very excited by your city's ongoing urban renaissance, thriving arts and culture scene, downtown walkability, streetcar development, centralized location, and, of course, the 2017 opening of Cincinnati Shakespeare Company's brand new world-class facility in Over-the-Rhine,” Flick said.

Phillips said the company has had preliminary conversations with the Cincinnati Visitor's Bureau, local hotels, Cincinnati USA Chamber, and ArtsWave to begin planning for the conference "to ensure that our national and international guests experience the best of what Cincinnati has to offer.”

The Shakespeare Theatre Association provides a forum for the artistic, managerial, educational leadership for theaters primarily involved with the production of the works of William Shakespeare to discuss issues and methods of work, resources, and information, and to act as an advocate for Shakespearean productions and training. Cincinnati Shakespeare Company has sent leaders to the conference for several years.

The new theater will feature a 244-seat main stage (CSC currently seats 150), with 197 seats on the main floor and 47 seats in the balcony. Plans call to maintain the uniquely intimate experience of attending a Cincinnati Shakespeare Company production, with no more than six rows included in the new design. In fact, the back row will be only 20 feet from the stage, a shorter distance than in the current theater. Intimate for the audience, spacious for the cast and crew, the new space will have ample backstage, vertical and horizontal space, a loading door into the theater, and on-site scenic and costume design and construction shops. Beyond the performance space, the facility includes a full-size rehearsal and event space and a designated classroom for educational programs, along with a spacious lobby, increased restroom facilities, a separate box office, and a stylish bar.

GBBN Architects and Messer Construction are leading the project. CSC also engaged Schuler Shook Theatrical Consultants and Kirkegaard Associates to advise on the acoustics.

June 21, 2016

If you have Shakespearean news to share, e-mail editorial@shakespeareances.com